7 Kestrel Street, Beveridge
Set in a quiet, family-friendly street within the sought-after Minton Place Estate, this beautiful Home built on approximately 392m² of land (approx.) delivers the perfect balance of modern comfort, functional design, and long-term growth potential in one of Beveridge’s fastest-emerging pockets.
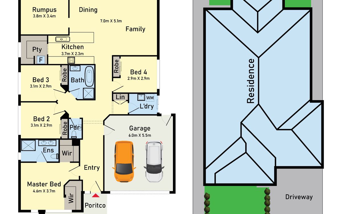
Designed with family living in mind, the home offers multiple living zones and a well-considered floorplan suitable for families of all sizes.
**4 spacious bedrooms
**Master bedroom positioned at the front with walk-in robe and private ensuite
**Remaining bedrooms fitted with built-in robes, ideal for children or guests
**Multiple living zones
**Light-filled open-plan family and dining area at the heart of the home
**Separate rumpus room which can be treated as Bedroom 5, perfect as a kids’ retreat, home theatre, or study space.
**Modern kitchen
**Generous 40 mm bench top space and storage
**900mm appliances, rangehood, and dishwasher
**Walk-in pantry for added convenience
**Seamless flow to dining and living areas
**Central bathroom with Bathtub & separate toilet
**Full-sized laundry with external access
**Double remote garage with internal entry
**Covered alfresco area, ideal for entertaining
**Low-maintenance backyard featuring:
**Corner-positioned shed
**Garden gazebo with side bench
**Easy-care landscaping for relaxed outdoor living
**Downlights in all interior areas down the Property.
**Ducted heating & evaporative cooling for year-round comfort
Location & Lifestyle
Beveridge is rapidly emerging as a key growth suburb in Melbourne’s north, making this property ideal for both owner-occupiers and investors.
Close to:
· Beveridge Primary School in walking Distance & local childcare centres.
· Parks, playgrounds, and walking tracks
· Easy access to the Hume Freeway
· Short drive to Craigieburn, Wallan, and future town centres.
· 35-minute train ride into Melbourne's CBD
Future Development & Growth:
. Beveridge is set to benefit from major planned infrastructure, including:
· Beveridge Village Town Centre (future retail, dining & services)
· New Coles Supermarket (opening soon) near to Camerons Lane.
· Melbourne Victory Northern Training Facility
· Improved transport links and road upgrades
· Long-term employment growth through nearby industrial and logistics precincts
Due Diligence Checklist for Residential Property Buyers: http://www.consumer.vic.gov.au/duediligencechecklist
NOTICE: While the vendor, agent, and agency have diligently strived to ensure the accuracy and truthfulness of the provided information, they assume no liability and hereby disavow any responsibility for errors, inaccuracies, or misrepresentations present within. Prospective buyers are advised to conduct their own investigations to authenticate the information presented herein.





