Space, Style & Exceptional Convenience
Discover a beautifully presented home in the highly sought-after Minton Place Estate, Beveridge, offering the perfect balance of comfort, functionality, and future potential. Set on a generous 400m² (approx.) block, is ideal for families, first-home buyers, and savvy investors looking to secure a foothold in Melbourne’s rapidly expanding northern corridor.
Nestled within a peaceful, master-planned community, Minton Place Estate is known for its family-friendly atmosphere, well-maintained streets, and growing sense of neighborhood connection. Surrounded by landscaped parks, walking tracks, and open green spaces, it provides an ideal environment for relaxed, modern living. Beveridge itself is fast emerging as a key growth suburb, attracting strong infrastructure investment, new amenities, and future transport links—making it an increasingly popular choice for buyers seeking both lifestyle and long-term capital growth. With easy access to major roads and nearby town centres, residents enjoy a convenient yet tranquil setting that continues to evolve with exciting developments on the horizon.
Property Features
• Light-filled open-plan living and dining area designed for modern family living
• Stylish kitchen with stone benchtops, 900mm stainless steel appliances & ample storage
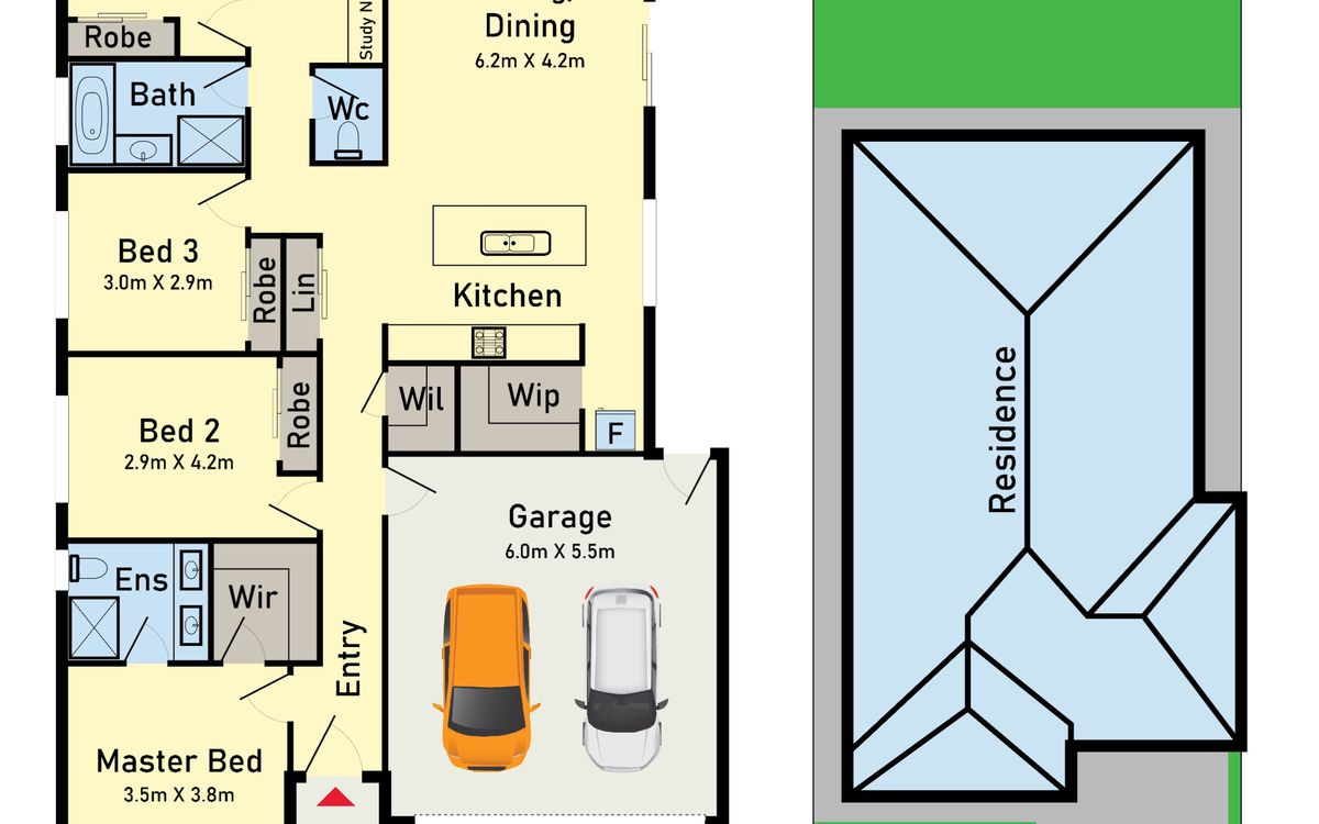
• Spacious master bedroom with walk-in robe and private ensuite
• Three additional well-sized bedrooms with built-in robes.
• Dedicated Inbuilt study area with cabinetry, ideal for working from home or study needs
• Premium Refrigerated heating & cooling system with 3-zone control for personalised comfort throughout the home
• Energy-efficient 6.4kW solar panel system to help reduce electricity costs
• Advanced security features including alarm system, intercom, and 6 CCTV night-vision cameras providing full property coverage and peace of mind
• Bathrooms fitted with heat lamps, ensuring comfort during colder months
• Elegant tiled entrance creating a welcoming and refined first impression
• Durable brick veneer construction offering both style and long-term reliability
• Attractive Aggregate concrete driveway enhancing street appeal
• Low-maintenance front and backyard with artificial turf, perfect for busy lifestyles
• North-facing orientation, allowing for abundant natural light throughout the day
• Internal access to a double garage for convenience and security.
Location Highlights
Perfectly located close to all the conveniences Beveridge has to offer:
• Beveridge Primary School – just 950m away
• Future Beveridge Train Station – planned within easy reach
• Mandalay Golf Course & Clubhouse – only 2 km away
• New Coles supermarket & Beveridge Town Centre (under construction) – just minutes away
• Surrounded by parks, playgrounds, and childcare options
• Short stroll to the local pub and community facilities
• Easy access to the Hume Freeway, only 45–50 minutes to Melbourne CBD
Due Diligence Checklist for Residential Property Buyers: http://www.consumer.vic.gov.au/duediligencechecklist
NOTICE: While the vendor, agent, and agency have diligently strived to ensure the accuracy and truthfulness of the provided information, they assume no liability and hereby disavow any responsibility for errors, inaccuracies, or misrepresentations present within. Prospective buyers are advised to conduct their own investigations to authenticate the information presented herein.
4
2
2



